Alquiler en Torre Real VIII
Description Torres Real es un proyecto el cual le permite…
$40,000 RD Mensual
Los Jardines Metropolitanos, Santiago De Los Caballeros 51000, Dominican Republic
En Planos
Desde $177,500 USD









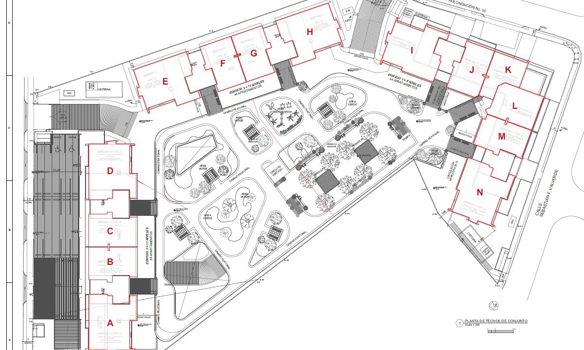
Armonia natural en los Jardines Metropolitanos – en el centro de todo y alrededor de una gran zona verde, con la vista y frescor de la montaña en los niveles más altos.
3 modernas torres de 8 y 11 niveles, residenciales y comerciales, con accesos independientes, cada una contara con 2 elevadores y diseños prácticos y contemporáneos; espacios cómodos e integrados con excelente terminación, donde podrás disfrutar en familia tiempos íntimos en el hogar.
Características del residencial y amenidades:
Terminaciones de los apartamentos:
Características de los apartamentos:
Proyecto en reestructuración
Description Torres Real es un proyecto el cual le permite…
$40,000 RD Mensual
Description SONOMA es un innovador complejo cerrado conformado de 3…
$36,500 RD Mensual